
Sarandí365 es el portal de noticias de la ciudad de Sarandí Grande y su zona de influencia.
sarandi365@gmail.com
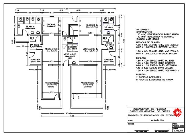
Una visita a las obras de remodelación que se vienen desarrollando en el Estadio "Batalla de Sarandí" efectuaron el alcalde de Sarandí Grande, Cayetano Stopingi, y el Director de Obras de la Intendencia Municipal de Florida, arquitecto Facundo Urbán. En la oportunidad, se apreciaron, entre otras mejoras, los avances en los vestuarios, en los que se han instalado nuevas duchas. Además, la obra incluye renovación de servicios higiénicos (incluyendo espejos de 1,80 por 1,20 mts), cantina, colocación de dos puertas interiores y cinco puertas de chapa, entre otras mejoras que pueden observarse en el plano que compartimos.
